Fiksēts portālceltnis
Produktu apraksts
Fiksētais portālceltnis ir būtisks materiālu apstrādes aprīkojums, kas paredzēts efektīvai smagu kravu pacelšanai, pārvietošanai un novietošanai dažādos rūpnieciskos lietojumos. Tas apvieno robustu inženieriju ar pielāgojamām funkcijām, lai apmierinātu dažādas darbības vajadzības.
Fiksētie portālceltņi atšķiras no mobilajiem portālceltņiem ar to, ka tie ir fiksēti noteiktā vietā, nodrošinot uzlabotu stabilitāti un drošību. Tajā pašā laikā tie var izturēt kravas, sākot no dažām tonnām līdz simtiem tonnu atkarībā no modeļa un konfigurācijas. Fiksētie portālceltņi ir izgatavoti no augstas kvalitātes tērauda vai sakausējuma materiāliem, lai izturētu stingru rūpniecisku izmantošanu un skarbos vides apstākļus.
Fiksēto portālceltņu laidumu un augstumu var pielāgot, lai tie atbilstu īpašām ekspluatācijas prasībām. Papildu elastībai ir pieejamas arī vienas vai dubultās sijas konfigurācijas.
Stacionāro portālceltņu uzticamība un precizitāte ir būtiska operācijām, kas saistītas ar smagu celšanu. Tie nodrošina arī ilgtermiņa risinājumus iekārtām, kurām nepieciešama fiksēta materiālu apstrāde. Vēl svarīgāk ir tas, ka tos var pielāgot konkrētiem nozares standartiem un darbības mērķiem.
Fiksētie portālceltņi ir neaizstājams instruments, kas palielina produktivitāti, samazina roku darbu un nodrošina drošu pārvietošanos ar smagiem materiāliem rūpnieciskā vidē.
Galvenās sastāvdaļas: PLC, dzinējs, pārnesums, motors, ratiņi
Izcelsmes vieta: Henana, Ķīna
Garantija: 1,5 gadi
Svars (KG): 125000 kg
Video izejošā pārbaude: nodrošināts
Mašīnu pārbaudes ziņojums: nodrošināts
Pielietojums: Ārā / rūpnīcā
Darba klase: A5
Celšanas svars: 20-450 tonnas
Tērauda sliede: 43kg/m QU70
Spriegums:3-Fāze AC50HZ 380V
Pacelšanas mehānisms: Ratiņi
Celtņa tips: Lieljaudas portālceltnis
Pacelšanas ātrums: 0,48–4,8 m/min
Braukšanas ātrums: 3 ~ 30 m/min
Tērauda materiāls: Q355B
Attēli un komponenti
1.Tālās gaismas
Stacionāra portālceltņa galvenā sija ir viena no galvenajām konstrukcijas sastāvdaļām, kas horizontāli stiepjas pāri celtnim. Tam ir izšķiroša nozīme kravas atbalstīšanā un pacēlāja vai ratiņu kustības atvieglošanā.Tālā sija iztur paceltās kravas svaru, sadalot to uz atbalsta kolonnām vai kājām.Tā nodrošina sliežu ceļu vai sliedes ratiņiem vai pacēlājiem ceļot horizontāli.
Stacionāra portālceltņa galvenā sija (bieži saukta par "siju" vai "tilta siju") ir būtiska konstrukcijas sastāvdaļa, kas atbalsta celtņa pacelšanas mehānismu un atvieglo kravas horizontālu kustību pa tā laidumu. Pacēlājs, kas pārvadā kravu. , ir uzstādīts uz tālās gaismas. Sija nodrošina konstrukciju, lai pacēlājs varētu pārvietoties horizontāli.
Sija ir izstrādāta tā, lai samazinātu novirzi zem slodzes, lai nodrošinātu drošību un efektivitāti. Tālās gaismas garums ir atkarīgs no celtņa pielietojuma un platības, kas tai jāpārklāj.
Parasti izgatavots no konstrukcijas tērauda, lai nodrošinātu augstu izturību un izturību. Tālās gaismas garums un izmērs ir atkarīgs no celtņa pielietojuma, kravnesības un darba telpas prasībām. Tam ir jāiztur statiskās slodzes (no ratiņu, pacēlāja un kravas svara) un dinamiskas slodzes (no celtņa un kravas kustības). Sija ļauj ratiņiem (un pacēlājam) pārvietoties sāniski pāri laidumam, lai novietotu kravu. precīzi.Bieži pārklāts ar pretkorozijas krāsu vai citu apstrādi, īpaši āra vai skarbā vidē.
Pacelšanas sistēma
Motors. Stacionāra portālceltņa pacelšanas sistēmas motors ir būtiska sastāvdaļa, kas izstrādāta, lai nodrošinātu mehānisko jaudu, kas nepieciešama kravu pacelšanai un nolaišanai.
2) Reduktors: Pacelšanas sistēmas reduktors fiksētā portālceltnī spēlē būtisku lomu jaudas pārnešanā no motora uz pacelšanas mehānismu, nodrošinot efektīvas pacelšanas darbības. Tā ir būtiska mehāniskās transmisijas sistēmas sastāvdaļa, kas parasti paredzēta, lai samazinātu motora ātrumu, vienlaikus palielinot tā griezes momentu.
3) Bungas: pacelšanas sistēmas cilindram fiksētā portālceltī ir būtiska loma pacelšanas mehānismā. Tas ir atbildīgs par stiepļu troses vai pacelšanas troses uztīšanu un attīšanu, kas ļauj celtnim efektīvi pacelt vai nolaist kravas.
4) Stiepļu trose: Stiepļu trose fiksēta portālceltņa pacelšanas sistēmā ir būtiska sastāvdaļa, kas ir atbildīga par mehāniskā spēka pārvadīšanu, kas nepieciešams, lai paceltu, nolaistu vai noturētu smagas kravas. Tā dizains un apkope būtiski ietekmē celtņa drošību, uzticamību un veiktspēju.
5) Trīšu bloks: stiepļu trose vai ķēde tiek apvilkta ap virkni skrituļu fiksētajos un kustīgajos blokos. Kad pacēlājs velk virvi, kustīgais bloks tiek pievilkts tuvāk fiksētajam blokam, paceļot slodzi.
6) Pacelšanas ierīce: fiksēta portālceltņa pacelšanas ierīce ir galvenais mehānisms, kas ir atbildīgs par kravu pacelšanu un nolaišanu. Tā ir būtiska sastāvdaļa, kas paredzēta, lai droši un efektīvi izturētu smagas kravas.
![]() |
![]() |
3. Beigaskariete
Stacionāra portālceltņa gala ratiņi ir ļoti svarīga sastāvdaļa, kas atvieglo celtņa horizontālo kustību pa sliežu ceļu vai sliedēm. Tas kalpo kā konstrukcijas daļa celtņa galos, atbalstot ratiņus vai pacēlāju, kas pārvietojas pa celtņa siju.
Gala ratiņi ir aprīkoti ar riteņiem, kas iet pa sliedēm vai sliedēm, kas uzstādītas uz zemes vai nesošās konstrukcijas. Tas ļauj visam celtnim pārvietoties uz priekšu un atpakaļ pa norādīto zonu, nodrošinot kravas sānu kustību.
Gala ratiņi atbalsta tiltu (galvenā celtņa sija) un nodrošina stabilitāti, kad celtnis ir kustībā. Tas pārnes slodzes no celtņa konstrukcijas uz zemi vai atbalsta virsmu.
Gala ratiņus parasti darbina elektromotors, kas virza riteņus. Motors var būt savienots ar pārnesumu mehānismu, kas ļauj celtnim pārvietoties ar dažādu ātrumu. Piedziņas sistēma var būt neatkarīga katram gala ratam, kas ļauj precīzi kontrolēt kustību.
Gala ratiņi bieži ir aprīkoti ar bremzēm vai gala slēdžiem, lai nodrošinātu drošu darbību un novērstu negadījumus, piemēram, celtņa pārvietošanos ārpus paredzētā diapazona. Lai izvairītos no bojājumiem, ja celtnis sasniedz savu gala stāvokli, var izmantot pretsadursmes ierīces.
Gala ratiņi parasti ir izgatavoti no tērauda vai pastiprināta metāla, lai izturētu smagas kravas. Tie var būt konstruēti ar gultņiem vai citām sastāvdaļām, lai laika gaitā samazinātu berzi un nodilumu. Gala ratu konstrukcijai un funkcionalitātei ir izšķiroša nozīme, lai nodrošinātu vienmērīgu, drošu un portālceltņa sistēmas efektīva darbība.
![]() |
![]() |
4.Crane braukšanas mehānisms
1) Darbības princips
Kad operators nosūta signālu, tiek aktivizēts elektromotors, nodrošinot piedziņas vārpstas rotācijas kustību. Rotējošā piedziņas vārpsta pagriež tai pievienoto zobratu, kas savukārt griež braukšanas riteņus. Riteņiem griežoties, tie pārvieto portālceltni. pa sliežu ceļu vēlamajā virzienā. Braukšanas ātrumu kontrolē, mainot motora ātrumu. Braukšanas virzienu kontrolē, mainot motora polaritāti vai izmantojot slēdzi uz priekšu/atpakaļ. Braukšanas riteņi ir novietoti tā, lai vienmērīgi sadalītu celtņa svaru pa sliežu ceļu, nodrošinot stabilitāti kustības laikā.
2) Celtņa darbības mehānisma funkcijas
Horizontālā kustība: Braukšanas mehānisms ļauj celtnim pārvietoties horizontāli visā portāla garumā. Tas ļauj celtnim novietot sevi vēlamajā zonā pacelšanas un nolaišanas operācijām.
Slodzes sadalījums: Braukšanas mehānisms palīdz vienmērīgi sadalīt celtņa svaru un jebkuru slodzi, ko tas nes. Tas nodrošina celtņa stabilitāti kustības laikā, novēršot apgāšanos vai nelīdzsvarotību.
Bremzēšana un apstāšanās: Braukšanas mehānismā ir bremžu sistēmas, lai vajadzības gadījumā apturētu celtni. Šī funkcija nodrošina drošu darbību, ļaujot celtnim apstāties noteiktā punktā, piemēram, tā gaitas ceļa beigās vai kravas pārkraušanas vietā.
5. Ratiņu kustības mehānisms
1) Strukturālais sastāvs
Ratiņu rāmis: Ratiņu rāmis kalpo kā galvenā konstrukcijas sastāvdaļa, kurā atrodas visas ratiņu daļas. Tas parasti ir izgatavots no tērauda, lai izturētu spriegumus un slodzi. Rāmis atbalsta pacēlāja bloku un ir veidots tā, lai tas būtu izturīgs, taču pietiekami viegls, lai efektīvi pārvietotos.
Riteņi: Ratiņi ir uzstādīti uz riteņiem, kas iet pa sliedēm, kas novietotas uz portāla konstrukcijas. Šie riteņi parasti ir izgatavoti no rūdīta tērauda, lai izturētu nodilumu.
Piedziņas ierīce: Piedziņas mehānisms sastāv no elektromotora vai hidrauliskās sistēmas atkarībā no celtņa konstrukcijas. Motors ir savienots ar reduktora sistēmu, kas samazina ātrumu, vienlaikus palielinot ratiņu pārvietošanai nepieciešamo griezes momentu.
2) Ratiņu darbības mehānisma funkcija
Piedziņas sistēma: tas parasti ietver elektromotoru, kas savienots ar pārnesumkārbu, kas nodrošina ratiņu kustību pa sliedēm vai kāpurķēdēm, kas uzstādītas uz celtņa konstrukcijas. Motoru var vadīt, lai pārvietotu ratiņus abos virzienos, nodrošinot elastību un kontroli kravas pozicionēšanā.
Kravas novietošana: ratiņi var pārvietot kravu visā celtņa sijas garumā, ļaujot operatoriem novietot kravas precīzās vietās, bieži vien lielos attālumos. Tas ir īpaši noderīgi, veicot tādus uzdevumus kā materiālu iekraušana un izkraušana no kravas automašīnām vai konteineriem.
Horizontālā kustība: Ratiņu kustības mehānisms ļauj celtnim pārvietot pacēlāju horizontāli gar celtņa siju vai siju. Tas ļauj celtnim precīzi novietot kravu noteiktā apgabalā.
Celtņa ritenis
Celtņa ritenis ir būtiska fiksētā portālceltņa sastāvdaļa, kas ir celtņa veids, ko izmanto smagu kravu celšanai un transportēšanai. Celtņa ritenis ir īpaši izstrādāts, lai portālceltnis varētu pārvietoties pa sliežu ceļu vai sliežu sistēmu vai nu fiksētā zonā, vai pa noteiktu maršrutu.
1) Riteņu funkcija
Riteņi ir paredzēti braukšanai pa noteiktām sliedēm vai sliedēm, kuras var piestiprināt pie zemes vai lielākas kustīgas sistēmas daļas. Sliežu ceļa konstrukcijai ir jāatbilst riteņa izmēram un novietojumam, lai nodrošinātu optimālu veiktspēju. Celtņa riteņi palīdz vienmērīgi sadalīt portālceltņa svaru un tā pārvadātās kravas, nodrošinot stabilitāti celšanas un pārvietošanās laikā.
2) Projektēšanas prasības
Šie riteņi ir izstrādāti ar spēcīgu protektora virsmu, lai nodrošinātu saķeri un vienmērīgu kustību pa celtņa sliežu sistēmu. Konstrukcijā bieži ir iekļautas rievas, kas palīdz uzturēt celtņa izlīdzināšanu uz sliežu ceļa. Celtņa ritenis parasti ir izgatavots no augstas stiprības tērauda vai sakausējuma materiāla, lai izturētu lielas slodzes un nepārtrauktu spriegumu darbības laikā.Celtņa riteņi ir dažādu izmēru atkarībā no celtņa kravnesība un konkrētais pielietojums. Lielāki riteņi tiek izmantoti lielākas ietilpības celtņiem un garākiem pārvietošanās attālumiem.

7. Celtņa āķis
Stacionāra portālceltņa celtņa āķim ir izšķiroša nozīme kravu pacelšanā un pārvietošanā. Āķis parasti ir izgatavots no augstas stiprības tērauda, lai izturētu nesošos spēkus celšanas operāciju laikā. Tam ir izliekta forma, lai droši noturētu slodze ar ķēdi, virvi vai stropēm. Tam var būt fiksators vai drošības mehānisms, lai novērstu kravas noslīdēšanu celšanas laikā.
Stacionāram portālceltnim ir stacionāra vai stingra konstrukcija, kas atbalsta celtņa pacelšanas mehānismus. Celtņa āķis ir uzstādīts ratiņu galā, kas pārvietojas pa celtņa horizontālo sliežu ceļu. Celtņa āķa stāvokli kontrolē pacelšanas mehānisms, kas ļauj pacelt un nolaist kravas noteiktās vietās.
Celtņa āķis ir paredzēts smagu materiālu, piemēram, celtniecības sijas, konteineru vai citu lielu priekšmetu celšanai. Tas darbojas kopā ar celtņa pacēlāju, kas paceļ un nolaiž āķi, ļaujot tam precīzi apstrādāt un novietot smagas kravas.
Celtņa āķī var būt iestrādāts aizbīdnis vai drošības tapa, lai novērstu kravas atvienošanu kustības laikā. Var būt arī pretgriešanās līdzekļi, lai nodrošinātu, ka āķis negriežas vai šūpojas nekontrolējami.

Motors
Stacionāra portālceltņa motoram ir izšķiroša nozīme celtņa kustību vadīšanā. Fiksētie portālceltņi ir lielas, lieljaudas mašīnas, ko parasti izmanto materiālu pacelšanai un transportēšanai pa fiksētām, noteiktām zonām. Šie celtņi sastāv no pacēlāja, ratiņiem, portāla un motorizētas piedziņas sistēmas.
Stacionāra portālceltņa motori parasti ir elektromotori. Izplatītākie veidi ir maiņstrāvas asinhronie motori vienkāršībai, efektivitātei un uzticamībai vai līdzstrāvas motori precīzākai ātruma kontrolei. Parasti motors atrodas uz celtņa ratiņiem vai dažreiz uz portāla rāmis atkarībā no celtņa konstrukcijas.
Motors darbina pacēlāju, kas ir atbildīgs par kravas pacelšanu un nolaišanu. Motors virza ratiņus (horizontālai kustībai) pa sliežu sistēmu.Daži portālceltņi, īpaši tie ar rotācijas spēju, izmanto motorus, lai pagrieztu celtņa konstrukciju (ja piemērojams) precīzai slodzes pozicionēšanai.Motora jaudu nosaka celtņa svara jauda. Lielāki portālceltņi, kas paredzēti smagākām slodzēm, izmantos jaudīgākus motorus. Motora ātrumu var kontrolēt, izmantojot mainīgas frekvences piedziņas (VFD), kas ļauj precīzi kontrolēt kustības.
Stacionāra portālceltņa motors ir galvenā sastāvdaļa, kas virza smagu kravu pacelšanu, pārvietošanu un novietošanu. Motora tips un jauda ir atkarīga no celtņa konstrukcijas un ekspluatācijas prasībām, un pareiza motora apkope ir būtiska drošai un efektīvai celtņa darbībai.

.
Skaņas un gaismas signalizācija un gala slēdzis
1) Skaņas un gaismas signalizācija
Stacionāra portālceltņa skaņas un gaismas signalizācija ir būtisks drošības līdzeklis, kas nodrošina strādnieku, tuvumā esošā aprīkojuma un apkārtējās vides labsajūtu. Šādas sistēmas ir paredzētas, lai brīdinātu personālu par iespējamiem apdraudējumiem, ekspluatācijas stāvokli vai celtņa darbības traucējumiem.
Skaņas trauksmes signāli (skaņas signāli): zummeri/trauksmes signāli: augstu decibelu skaņas izstarotāji brīdina cilvēkus par īpašiem apstākļiem (piemēram, celtņa kustība, pacelšana notiek, avārijas izslēgšana). Trauksmes signāli: dažādas skaņas var atbilst dažādām situācijām (piemēram, nepārtraukti. sirēna avārijas gadījumiem, periodisks pīkstiens vispārējai darbībai). Skaļuma kontrole: nodrošina, ka trauksmes signāls ir dzirdams visā darba vietā pat trokšņainā laikā. vides.
Gaismas signāli (vizuālie indikatori): Mirgojošas gaismas: augstas intensitātes mirgojošas gaismas (parasti sarkanas, dzeltenas vai zaļas) tiek izmantotas, lai vizuāli signalizētu par celtņa darbības statusu. Piemēram:
Sarkana mirgojoša gaisma: norāda uz ārkārtas vai bīstamiem apstākļiem.
Dzeltena mirgojoša gaisma: norāda, ka celtnis darbojas vai kustas.
Zaļā gaisma: var norādīt, ka celtnis ir dīkstāvē vai ka tam ir droši tuvoties.
2) Ierobežojuma slēdzis
Stacionāra portālceltņa gala slēdzis ir drošības ierīce, ko izmanto, lai neļautu celtņa kustībai pārsniegt iepriekš noteiktu robežu. Tas palīdz nodrošināt, ka celtņa sastāvdaļas (piemēram, pacēlājs, ratiņi vai portāls) nepārvietojas pārāk tālu nevienā virzienā, novēršot mehāniskus bojājumus, negadījumus vai nedrošas darbības.
Ierobežojuma slēdža funkcijas: Pozīcijas ierobežošana: Ierobežotais slēdzis nosaka, kad celtņa ratiņi, pacēlājs vai portālceltnis ir sasniedzis sava pārvietošanās diapazona beigas, un atslēdz strāvu, lai novērstu turpmāku kustību. Drošība: tas darbojas kā atteices mehānisms, lai neļautu celtnim darboties ārpus drošām robežām. Novērš pārmērīgu pārvietošanos: nodrošina, ka celtņa pacelšanas mehānisms nepārsniedz drošās robežas, izvairoties no celtņa vai kravas bojājumi.Slodzes aizsardzība: neļauj celtnim pārāk tālu pacelt vai nolaist kravu, nodrošinot kravas integritāti un novēršot negadījumus.
Mehāniskie robežslēdži: tos fiziski iedarbina celtņa daļu kustība. Tie var būt rullīša, sviras vai virzuļa tipa slēdži. Elektriskie robežslēdži: tie izmanto sensorus vai elektriskās ķēdes, lai noteiktu celtņa komponentu stāvokli.

10.Drošības ierīces
1) Pārslodzes aizsardzības ierīce: neļauj celtnim pacelt kravas, kas pārsniedz tā nominālo jaudu, samazinot konstrukcijas bojājumu vai apgāšanās risku.
2) Ierobežojuma slēdži (pārvietošanās un pacelšanas ierobežojumi): nodrošina, ka celtņa ratiņi, pacēlājs vai portālceltnis nepārvietojas tālāk par noteiktu iepriekš noteiktu stāvokli, novēršot celtņa konstrukcijas vai apkārtējo iekārtu bojājumus.
3) Avārijas apturēšanas poga: nodrošina tūlītēju līdzekli celtņa apturēšanai avārijas gadījumā.
4) Pretšūpošanās kontrole: samazina kravas šūpošanos vai šūpošanos, kas var izraisīt negadījumus vai bojājumus.
5) Slodzes momenta indikators (LMI): nodrošina reāllaika datus par celtņa stabilitāti, mērot momentu vai spēku, ko iedarbojas slodze.
6) Signāltaure un brīdinājuma gaismas: brīdiniet strādniekus, kas atrodas celtņa tuvumā, par tā darbību, īpaši, ja tas pārvieto smagas kravas vai atrodas ierobežotās zonās.
11.Vadības režīms
1) Manuālā vadība: celtni manuāli darbina operators, izmantojot vadības paneli vai kursorsviru, lai kontrolētu celtņa kustības. Šis ir vienkāršākais režīms, kurā operatoram ir tieša kontrole pār pacēlāja, ratiņu un portāla kustību.
2) Pusautomātiskā vadība: celtni var darbināt pusautomātiskā režīmā, kur noteiktas kustības (piemēram, pacelšana vai ratiņu kustība) ir automatizētas, taču operatoram joprojām ir zināma manuāla kontrole pār citām funkcijām.
3) Pilnībā automātiska vadība: Pilnībā automatizētā režīmā celtni kontrolē borta datorsistēma ar minimālu cilvēka iejaukšanos vai bez tās. Šīs sistēmas var pārvaldīt sarežģītas pacelšanas, iekraušanas un izkraušanas darbības, pamatojoties uz iepriekš ieprogrammētām instrukcijām vai reāllaika sensoru datiem.
4) Radio tālvadības pults: šis režīms ļauj attālināti vadīt celtni, izmantojot rokas radio raidītāju. Tas nodrošina operatoriem elastīgumu strādāt no dažādiem punktiem, uzlabojot drošību un produktivitāti vidēs, kur celtnis darbojas lielās vai bīstamās zonās.
5) Kursorsviras vadība: to bieži izmanto manuālajos vai pusautomātiskajos režīmos, kur operators izmanto kursorsviru, lai kontrolētu celtņa kustības. Tas ļauj precīzi kontrolēt pacelšanas slodzi, īpaši uzdevumiem, kuriem nepieciešamas smalkas kustības vai ierobežotās telpās.

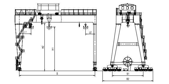
12.Skice

Galvenā tehniskā

Priekšrocības
1) Augsta nestspēja
Fiksētie portālceltņi ir paredzēti, lai efektīvi paceltu smagas kravas, kas bieži pārsniedz 100 tonnas, padarot tos ideāli piemērotus rūpnieciskiem lietojumiem, kur jāpārvieto lieli, smagi materiāli.
2) Spēcīga stabilitāte
Tā kā celtnis ir noenkurots fiksētā stāvoklī uz sliedēm vai citiem konstrukcijas elementiem, tas nodrošina augstu stabilitātes un atbalsta līmeni pacelšanas operāciju laikā. Tas samazina apgāšanās vai šūpošanās risku lielas slodzes apstākļos.
3) Precizitāte kustībā
Fiksētie portālceltņi nodrošina vienmērīgu, precīzu kravas pozicionēšanas kontroli, padarot tos ideāli piemērotus darbībām, kurās nepieciešama precīza smago materiālu novietošana šaurās vietās.
4) Izturība un uzticamība
Pateicoties to izturīgajai konstrukcijai un augstas kvalitātes materiāliem, fiksētie portālceltņi ir veidoti tā, lai tie izturētu skarbos vidi un darbotos nepārtraukti, samazinot dīkstāves laiku un palielinot produktivitāti.
5) Spēja aptvert lielas platības
Fiksētos portālceltņus var konstruēt tā, lai tie varētu pārvietoties lielos attālumos, ļaujot tiem pārvietot materiālus lielās platībās, piemēram, dokos, uzglabāšanas pagalmos vai lielās būvlaukumos.
6) Samazināta nepieciešamība pēc fiziska darba
Šie celtņi ievērojami samazina vajadzību pēc manuālas celšanas un materiālu transportēšanas, kas var palīdzēt uzlabot darba vietas drošību un efektivitāti, samazinot darbinieku traumu risku.
Pielietojums:
Kravu apstrāde: stacionārie portālceltņi ir būtiski ostās konteineru iekraušanai un izkraušanai no kuģiem. Viņi var precīzi un ātri apstrādāt smagus un lielus konteinerus.
Kuģu celtniecība un remonts: kuģu būvētavās šos celtņus izmanto lielu tērauda detaļu, kuģu sekcijas vai veselu kuģu pārvietošanai būvniecības vai remonta procesu laikā.
Smago materiālu celšana: Fiksētos portālceltņus izmanto smagu būvmateriālu, piemēram, tērauda sijas, betona bloku un celtniecības tehnikas transportēšanai visā būvlaukumā.
Tiltu celtniecība: tos izmanto tiltu un citu lielu konstrukciju celtniecībā, kur materiāli ir jāpaceļ lielā augstumā vai attālumā.
Montāžas līnijas atbalsts: Ražošanā, īpaši automobiļu un smagās tehnikas nozarēs, fiksētie portālceltņi pārvieto lielas detaļas dažādos montāžas posmos.
Materiālu apstrāde: šie celtņi atvieglo izejmateriālu, piemēram, lielu metāla lokšņu vai mašīnu detaļu, pārvietošanu pa rūpnīcas grīdām.
Apstrāde ar karstu tēraudu: Fiksētos portālceltņus parasti izmanto tērauda rūpnīcās, lai pārvietotu kausētu tēraudu, smagas tērauda plāksnes vai citus smago metālu izstrādājumus no vienas rūpnīcas daļas uz citu.
Materiālu transportēšana: šie celtņi ir būtiski tērauda ruļļu, lietņu un citu smagu kravu pārvadāšanai tērauda ražotnē.
Uzglabāšana un izņemšana: Fiksētos portālceltņus izmanto, lai pārvietotu smagus vai lielgabarīta priekšmetus no uzglabāšanas plauktiem vai tvertnēm un no tiem, uzlabojot uzglabāšanas un izņemšanas sistēmu efektivitāti.
Cross-Docking darbības: Lielos izplatīšanas centros šie celtņi var atvieglot preču ātru pārvietošanu no viena transporta līdzekļa uz citu.
Gaisa kuģu montāža: šos celtņus izmanto lielu gaisa kuģu daļu montāžai un transportēšanai ražošanas laikā, tostarp fizelāžas sekcijas un spārnu komplektus.
Komponentu apstrāde: Aviācijas un kosmosa nozare paļaujas uz portālceltņiem, lai pārvietotu jutīgas un smagas sastāvdaļas dažādos ražošanas posmos.
Apstrāde ar smago aprīkojumu: Stacionārie portālceltņi ir ļoti svarīgi spēkstacijās smago mašīnu, turbīnu komponentu vai lielu elektrisko daļu celšanai.
Apkope: šie celtņi palīdz remontēt un uzturēt lielu rūpniecisko iekārtu spēkstacijās, tostarp ogļu un kodoliekārtās.
Smago materiālu apstrāde: Stacionāros portālceltņus izmanto kalnrūpniecības operācijās, lai transportētu tādus materiālus kā rūda, akmeņi un minerāli no vienas raktuves daļas vai pārstrādes rūpnīcas uz citu.
Iekārtu apkope: tos izmanto arī smago kalnrūpniecības iekārtu pacelšanai un apkopei.
Celtnisražošanu procedūru
Specifikācijas prasības: izprotiet īpašās prasības celtnim, piemēram, kravnesību, laidumu, pacelšanas augstumu un vides faktorus (iekštelpās/ārtelpās, temperatūra utt.). Struktūras projektēšana: projektējiet celtņa konstrukciju, tostarp portāla rāmi, pacelšanas mehānismu. , un pamatu, izmantojot CAD programmatūru, lai nodrošinātu izturību, stabilitāti un drošību.Mehāniskā konstrukcija: projektējiet ratiņus, pacēlāju un citas mehāniskās sistēmas, kas nepieciešamas celtņa darbībai.Elektriskās Dizains: projektējiet elektriskos komponentus, tostarp vadības paneļus, motorus un drošības sistēmas.
Tērauda plāksnes un sekcijas: Celtņa konstrukciju komponentiem (kolonnas, sijas utt.) tiek pasūtīts augstvērtīgs tērauds.Motori un sastāvdaļas: Ratiņu, pacēlāja un citu vadības sistēmu motori tiek iepirkti no piegādātājiem.Metināšanas elektrodi, skrūves, un stiprinājumi: nepieciešamie palīgmateriāli metināšanai un montāžai.Vadības sistēmas: Elektriskie komponenti, piemēram, slēdži, tiek iegādāti releji un sensori celtņa vadības sistēmām.
Griešana un formēšana: Tērauda plāksnes un sekcijas tiek sagrieztas vajadzīgajos izmēros, izmantojot griešanas mašīnas, plazmas griezējus vai ūdens strūklas. Metināšana: Tērauda detaļas tiek sametinātas kopā, veidojot portāla konstrukciju. Tas tiek darīts pa daļām: pamatnes rāmis, kājas, šķērssijas un citi elementi.Apstrāde: Ja nepieciešams, detaļām tiek veiktas apstrādes darbības (urbšana, frēzēšana), lai nodrošinātu precīzu montāžu.Virsmas apstrāde: komponenti tiek tīrīti un apstrādāti (tādi). kā skrošu strūklu un krāsošanu), lai novērstu rūsēšanu un uzlabotu izturību, īpaši, ja celtnis tiks izmantots āra vidē.
Portāla rāmja montāža: pamatne, kājas un šķērssijas ir samontētas pilnā portāla konstrukcijā. Šo darbību var veikt lielā darbnīcā vai uz vietas atkarībā no celtņa izmēra un atrašanās vietas. Sliežu montāža: Celtņa ratiņu sliedes ir uzstādītas uz portāla sijām. Tas ir ļoti svarīgi, lai nodrošinātu vienmērīgu darbību. Pacēlāja un ratiņu uzstādīšana: pacēlājs, motors un ratiņu komplekts ir uzstādīti uz sliedēm. Pacēlāja mehānisms ir integrēts ar pacelšanas ķēdi vai virvi, un motors ir savienots ar piedziņas sistēmu. Elektriskā instalācija: ir uzstādīta elektroinstalācija, vadības paneļi, slēdži un drošības sistēmas, kas nodrošina celtņa attālinātu un drošu darbināšanu.
Mehāniskā pārbaude: pārbaudiet, vai visas mehāniskās sistēmas darbojas pareizi, tostarp pacēlājs, ratiņi un portāla kustība. Elektriskā pārbaude: pārbaudiet elektrisko komponentu funkcionalitāti, tostarp vadības sistēmu, motorus un avārijas apturēšanas funkcijas. Slodzes pārbaude: veiciet slodzes pārbaudi, lai nodrošināt, ka celtnis var bez problēmām pacelt norādīto jaudu. Tas var ietvert celtņa iekraušanu ar testa atsvariem un tā darbināšanu ar dažādām kustībām.Drošības funkciju pārbaude: Pārliecinieties, ka visas drošības sistēmas, tostarp gala slēdži, pārslodzes sensori un avārijas bremzēšana, darbojas pareizi.
Montāža uz vietas (ja nepieciešams): lieliem celtņiem detaļas var transportēt uz uzstādīšanas vietu, kur tiek veikta galīgā montāža un iestatīšana. Galīgie pielāgojumi: visi celtņa izlīdzināšanas, elektroinstalācijas vai drošības sistēmu pielāgojumi tiek veikti pēc vajadzības. Operatoru apmācība: ja nepieciešams, operatori tiek apmācīti, kā droši un efektīvi izmantot celtni, aptverot ekspluatācijas, apkopes un drošības procedūras.

Darbnīcas skats:
Uzņēmums ir uzstādījis viedo iekārtu vadības platformu, kā arī uzstādījis 310 apstrādes un metināšanas robotu komplektus (komplektus). Pēc plāna pabeigšanas būs vairāk nekā 500 komplektu (komplektu), un iekārtu tīklošanas ātrums sasniegs 95%. Ekspluatācijā ir nodotas 32 metināšanas līnijas, plānots uzstādīt 50, un visas produktu līnijas automatizācijas līmenis ir sasniedzis 85%.





Populāri tagi: fiksēts portālceltnis, Ķīna fiksēto portālceltņu ražotāji, piegādātāji, rūpnīca
Jums varētu patikt arī
Nosūtīt pieprasījumu



























